KV HOUSE

eksisting

terdiri dari 3 lantai, lantai 1 servis, lantai 2 area komunal dan lantai 3 area privat, kondisi eksisting rumah masih berupa kosong tanpa meubelair, tapi sudah ada plot fungsi-fungsi ruang yang didesain sama si arsitek sebelumnya

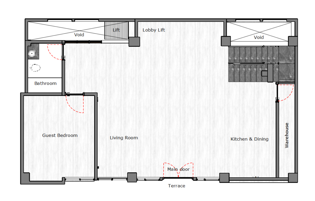
nah, yang akan dibahas dari detail renovasi rumah ini adalah area utama yang berkonsep open plan di lantai 2, yang mewadahi r.keluarga, dapur & r.makan

layouting

karna ini open plan, asanata & in.furniture langsung brainstorming, ngeplotin / misahin area highmovement (terjadi sirkulasi tinggi) dan lowmovement (minim pergerakan) untuk menandai area-area yang tidak boleh dikasih perabot fungsional dan area mana yang kita putuskan untuk ngasih perabot fungsional, terlihat jelas batas-batas itu kayak denah dibawah ini

problem 1 : fungsi area yang semu

openplan memang bagus untuk memberikan keleluasaan ruang, tapi kadang intimasi dari masing2 ruang jadi hilang, di kasus KV House, plafond eksisting di area openplan cenderung tidak beraturan, tidak menegaskan mana area yang berfungsi penting (lobby lift, living room, kitchen & dining) dan mana area yang berfungsi sebagai area pendukung (area sirkulasi)

keliatan kan digambar2 ini, bahkan drop ceiling diatas living room pun belum bisa membuat living room terkesan lebih penting dari sirkulasi di depan pintu utama

Q : kok yang dipermasalahkan paman plafond doang, lantainya endak dipermasalahin

A : di area openplan kalau lantai kita buat beda2 malah kesan luasnya hilang, yg kedua kalau mau ngrombak lantai pun, biayanya juga lebih mahal, sayang kalau di ubah2, yg ketiga, begitu ada furniture, lantai akan ketutup sebagian sama furniture, jadi di rombak pun endak signifikan efeknya

 

solving 1 : highlighting area

mempertegas area dengan bermain drop & upceling pada area penting (lobby lift, living room, kitchen & dining) 

| AREA LIVING & DINING |

Desain 2 kotak upceiling dengan lampu gantung merepresentasikan 2 area penting di bawahnya : living dan dining, 1 kotak upceiling tanpa lampu gantung merepresentasikan main door. Si lampu gantung tadi akan meningkatkan intimasi sekaligus membedakan hirarki ruang antara living-dining dengan area-area yang lainnya

Q : kok yang upceiling tengah endak dikasih lampu gantung paman?

A : justru akan aneh dong, lokasinya kan ada di depan maindoor, ketika orang masuk akan kerasa ngganggu banget, belum lagi, kalau 3 upceiling dikasih lampu gantung semua, intimasi ruang yang terjadi di area dining dan living jadi hilang, tujuan dari lampu gantung di atas dining dan living kan buat nunjukin kalau area itu lebih penting dari area sirkulasi di depan maindoor

| LOBBY LIFT |

problem 2 : exposed kitchen

di kasus KV House, layout dapur A dan B yg berbentuk L dengan meja dapur terpisah membuat dapur terlalu terekspos dari pintu masuk

selain itu, karna meja makan yang terpisah dari dapur, menimbulkan akses langsung ke arah dapur dari pintu masuk

solving 2 : U-shape integrated dining-kitchen

menggunakan konsep dapur bentuk U, sekaligus menggabungkan dapur dengan meja makan

dengan konsep ini, akses ke dapur jadi lebih private melalui indirect access

Q : yang jadi pertanyaan buat paman, gimana dispenser tetap bisa diakses dari 2 arah paman?

A : pertanyaan bagus! kalau dihadapkan ke dapur, orang yang mau ambil air jadi kesulitan kan, harus masuk dapur dulu, wasting time kan maksudmu?

SOLUSINYA AKAN PAMAN BAHAS DI PROBLEM SOLVING KE 3 YA! 

problem 3 : akses dispenser

solving 3 : integrated dispenser

problem-solving 3 akan dipublish di 15 April 2024

dokumentasi hasil terbangun

akan dipublish pada 20 April 2024

error: Content is protected !!